17938 WHEAT STACK COURTPARRISH, FL 34219




Mortgage Calculator
Monthly Payment (Est.)
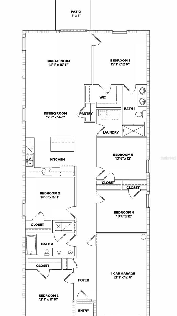
$1,665Under Construction. Receive up to $20,000 towards Flex Cash & Closing Costs + special interest rates with the use of our preferred lender - now through February 28th. The Alford is a one-story home that balances style, space, and comfort. Offering 5 bedrooms, 2 bathrooms, and 1,739 square feet, this floor plan provides plenty of room for families of all sizes. Its open-concept layout seamlessly connects the kitchen, dining, and living areas, creating a welcoming space that’s ideal for gatherings or everyday living. The kitchen is a standout with shaker-style cabinetry, quartz countertops, and stainless-steel appliances, all overlooking the dining area for easy entertaining. With its thoughtful layout and modern finishes, the Alford makes it easy to create the home that fits your lifestyle. The primary suite is tucked at the back of the home for added privacy, featuring a walk-in closet and a private bathroom with dual vanities and a separate space for the shower and toilet. Four additional bedrooms at the front of the home offers flexibility for family, guests, or even a home office. This community offers resort-style living with amenities for everyone, including a sparkling pool, fitness room, playground, dog park, and both pickleball and tennis courts. Residents can also enjoy friendly competition at the beach volleyball and basketball courts, creating the perfect blend of relaxation and recreation.
| a minute ago | Listing updated with changes from the MLS® | |
| 5 hours ago | Listing first seen on site |
Listing information is provided by Participants of the Stellar MLS. IDX information is provided exclusively for personal, non-commercial use, and may not be used for any purpose other than to identify prospective properties consumers may be interested in purchasing. Information is deemed reliable but not guaranteed. Properties displayed may be listed or sold by various participants in the MLS Copyright 2026, Stellar MLS.
Last checked: 2026-02-18 02:24 PM EST
Did you know? You can invite friends and family to your search. They can join your search, rate and discuss listings with you.