145 FRANCIS DRIVE NEPORT CHARLOTTE, FL 33952




Mortgage Calculator
Monthly Payment (Est.)
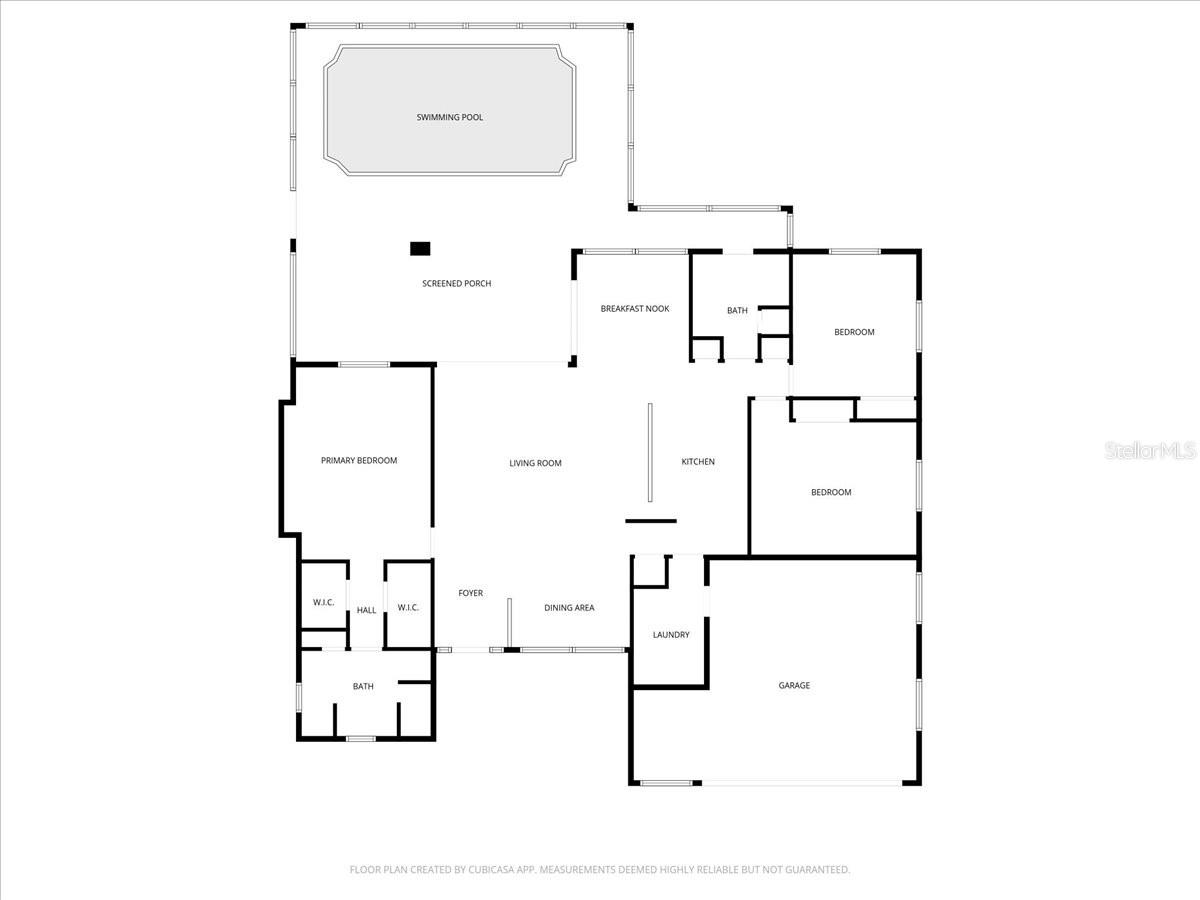
$2,505Exceptionally maintained waterfront pool residence offering a blend of comfort, efficiency, and coastal lifestyle features. Located on a canal overlooking Higgs Park, offering water access paired with rare but delightful views and tranquility. Approximately 1.03 miles to open water via the Elkcam Waterway passing under one fixed bridge – or about 8 minutes at idle speed to the open waters of Charlotte Harbor. Major updates that translate into value for the new homeowner include a 2024 solar photovoltaic system (leased), 2024 pool cage rescreen, 2024 exterior Tex-Cote Coolwall lifetime coating of stucco (not paint), 2022 roof, 2022 hot water heater, 2022 dock planking, and 2018 air conditioning. A kitchen reverse osmosis (2023), wind mitigation and 4-point inspections (2022), pool heater (2018), hot tub, and irrigation supplied by a private well also equate to substantial savings for new owners. MUCH MORE INFO is attached – ask your agent for it, especially the FEATURES SHEET. The interior welcomes guests with volume ceilings highlighting a bright great room with a 12’ sliding glass door showcasing pool, canal, and peaceful green space views of the park. The kitchen is designed for daily living and entertaining with a breakfast bar, breakfast nook, and pantry. The primary suite offers two walk-in closets, dual comfort-height vanities, a soaking tub, and linen storage. Additional interior features include tile in wet areas, carpeted bedrooms, Manabloc plumbing, and an interior laundry room with upgraded washer and dryer. Outdoor living maximizes the waterfront setting with a screened entry (2024 rescreen), covered lanai, heated pool, and expansive deck. Boating features include a concrete seawall, dock with water/electric/lighting, a fish cleaning station, a boat lift with an aluminum catwalk, and professionally wrapped pilings for durability. This property comes with a ONE-YEAR HOME WARRANTY for the buyer. MUCH MORE INFO is attached – ask your agent for copies, especially the FEATURES LIST and WARRANTY OUTLINE.
| 57 minutes ago | Listing updated with changes from the MLS® | |
| 9 hours ago | Listing first seen on site |
Listing information is provided by Participants of the Stellar MLS. IDX information is provided exclusively for personal, non-commercial use, and may not be used for any purpose other than to identify prospective properties consumers may be interested in purchasing. Information is deemed reliable but not guaranteed. Properties displayed may be listed or sold by various participants in the MLS Copyright 2026, Stellar MLS.
Last checked: 2026-02-12 10:21 PM EST
Did you know? You can invite friends and family to your search. They can join your search, rate and discuss listings with you.